Bản vẽ thiết kế hệ thống tưới tự động cho nhà khách tại Vinhomes Ocean Park
Chi tiết bản vẽ hệ thống tưới tự động. Sử dụng thiết bị chất lượng, uy tín cho nhà biệt thự cao cấp.
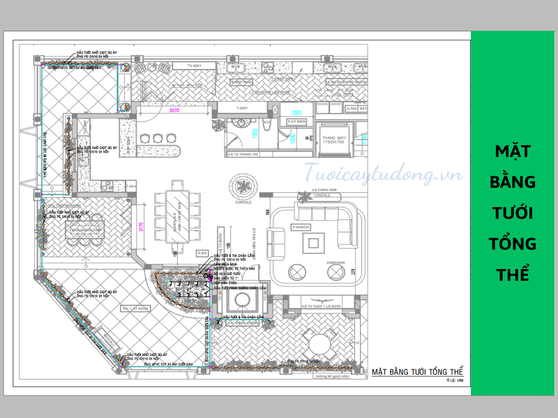
NTS khoe nhẹ một bản vẽ thiết kế hệ thống tưới tự động cho khách hàng.
Khách đang có nhu cầu lên phương án tưới cho sân vườn nhà mình. Theo quan sát, nhà khách chủ yếu cần tưới cho các bồn cây được bố trí dọc hàng rào và sát nhà. Biệt thự này có một lợi thế là mọi khu vực cần lắp hệ thống tưới đã có sẵn vòi nước, ngay cả trong sân cũng đã có sẵn. Điều này giúp tiết kiệm được khá nhiều vật tư, tiến độ thực hiện lắp đặt cũng được đẩy nhanh hơn.
Sau quá trình xem xét cảnh quan và ghi nhận ý kiến của chủ nhà. NTS đưa ra giải pháp tưới nhỏ giọt cho các bồn hẹp. Các bồn lớn hơn thì dùng thêm béc tưới phun sương để bỗ trợ.
Ở công trình này, khách có mong muốn điều khiển hệ thống tưới từ xa qua điện thoại. Việc này giúp khách yên tâm hơn mỗi khi cần đi công tác xa, dài ngày. Do đó, chúng tôi đã quyết định lắp bộ điều khiển Wifi Orbit. Đây gần như là giải pháp tối ưu cho khách.
Cùng NTS xem qua bản thiết kế chi tiết ngay bên dưới nhé.
Chi tiết bản vẽ
Nếu bạn đang có nhu cầu sở hữu một bản vẽ như trên cho mình, liên hệ ngay với NTS để được hỗ trợ nhé.
CÔNG TNHH KỸ THUẬT NTS
Địa chỉ: Số 15, đường số 3, KDC Gia Hòa, P. Phước Long B, Tp. Thủ Đức, Tp. HCM
Hotline - Zalo: 0916 75 31 31 (8h - 17h hàng ngày)


Xem thêm